
高效振網篩簡介
振網篩是以振動電機做為振動源,牽引篩網及篩框振動,實現物料分級。振網篩篩機振幅可調,篩分效率高,生產能力大,動負荷小,噪音低,密封防塵,維修方便。振網篩適用于對松散的復合肥料及其它松散的細物料進行分級。
振網篩結構簡單、適應面廣、篩分效率高、能耗低、防塵效果好。該篩可根據處理量要求,組合成大面積振動篩;可選擇不同型式的篩網、振動方式及不同的振動方向角,能適應各種高磨耗、粘性、含水量大的物料。
技術參數

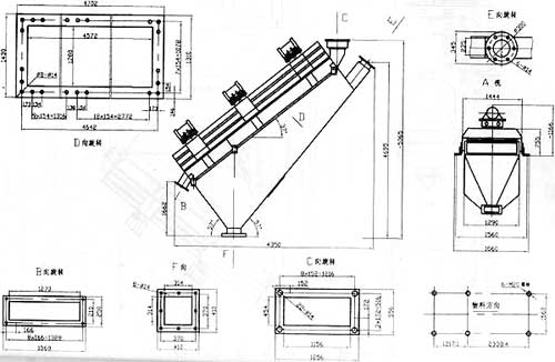
振安裝尺寸
| 型號 | 篩 面 | 給料粒度(mm) | 處理量(t/h) | 振次(l/min) | 雙振幅(mm) | 功率(kw) | 外形尺寸 長×寬×高(mm) | 總重量(kg) | ||||
| 層數 | 面積(m2) | 傾角(°) | 篩孔尺寸(mm) | 結構 | ||||||||
| ZWS1230 | 1 | 3.6 | 37 | 10×40 | 編織 | ≤60 | 30-35 | 1450 | 3-5 | 0.85×2 | 3090×1700×3169 | 1623 |
| 2ZWS1230 | 2 | 3.6 | 33 | 上:4×50 下:1.4×50 | 編織 | ≤60 | 30-35 | 1450 | 3-5 | 0.85×2 | 3301×1680×3300 | 2300 |
| ZWS1245 | 1 | 5.4 | 37 | 上:4×50 下:1.4×50 | 編織 | ≤60 | 45-60 | 1450 | 3-5 | 0.85×3 | 4350×1660×5066 | 2631 |
| 2ZWS1245 | 2 | 5.4 | 37 | 上:4×50 下:1.4×50 | 編織 | ≤60 | 45-60 | 1450 | 3-5 | 0.85×3 | 4496×1660×5648 | 3612 |
| ZWS1260 | 1 | 7.2 | 20 | 4×25 | 編織 | ≤60 | 60-90 | 1450 | 3-5 | 0.85×4 | 6576×1660×4240 | 3290 |
| 2ZWS1260 | 2 | 7.2 | 37 | 上:4×50 下:1.4×50 | 編織 | ≤60 | 60-90 | 1450 | 3-5 | 0.85×4 | 5678×1660×6156 | 4532 |


蘇公網安備 32062102000184號